URZEKA - nowoczesne osiedle w otoczeniu natury | Gdańsk - Jasień
Inwestycja Urzeka to kameralne osiedle mieszkaniowe położone w zielonej części Gdańska, przy ul. Czermińskiego, w bezpośrednim sąsiedztwie lasu oraz Potoku Oruńskiego. To idealna propozycja dla osób, które szukają równowagi pomiędzy spokojem natury a dostępem do miejskich udogodnień.
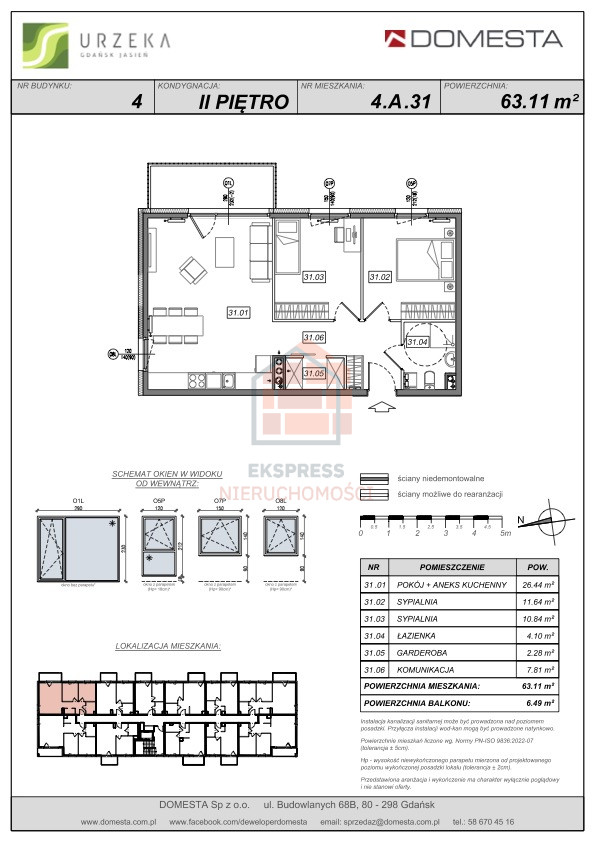
Architektura i standard wykończenia
Nowoczesna i elegancka architektura wyróżnia się jasną kolorystyką elewacji, naturalnymi akcentami z cegły oraz elementami zieleni - w tym pnączami i dachami porośniętymi roślinnością.
Mieszkania są oddawane w wysokim standardzie deweloperskim, który obejmuje m.in.:
ściany pokryte gładzią gipsową i pomalowane na biało,
ściany działowe z bloczków gipsowych o podwyższonej izolacji akustycznej,
trzyszybowe okna z nawiewnikami higrosterowanymi,
solidne parapety i drzwi antywłamaniowe klasy C.
Układy mieszkań i przestrzeń prywatna
W ofercie znajdują się mieszkania o powierzchni od około 30 do ponad 80 m² - zarówno kompaktowe kawalerki, jak i przestronne lokale 3‑ i 4‑pokojowe. Wszystkie mieszkania posiadają balkon, ogródek lub loggię, a część z nich także garderoby.
To funkcjonalne i przemyślane układy, idealne zarówno dla singli i par, jak i rodzin czy inwestorów szukających nieruchomości pod wynajem.
Przestrzeń wspólna i udogodnienia
Na terenie osiedla zaprojektowano wyjątkową przestrzeń rekreacyjną - w tym taras widokowy w formie „leśnego molo”, plac zabaw inspirowany naturalnym krajobrazem, tyrolkę, „małpi gaj”, boisko sportowe oraz strefy relaksu.
Ruch samochodowy został ograniczony do obrzeży inwestycji, co zapewnia bezpieczeństwo i spokój na dziedzińcach. Do dyspozycji mieszkańców są:
hale garażowe i naziemne miejsca postojowe,
komórki lokatorskie,
cichobieżne windy w każdej klatce.
Lokalizacja i komunikacja
Osiedle powstaje w rozwijającej się dzielnicy Jasień, z doskonałą infrastrukturą w zasięgu spaceru - w pobliżu znajdują się sklepy (m.in. Lidl, Carrefour), restauracje, siłownie, przedszkola, szkoły oraz placówki medyczne.
Atutem lokalizacji jest także szybki dostęp do Obwodnicy Trójmiasta oraz planowana budowa ulicy Nowa Turzycowa, która dodatkowo usprawni dojazd do centrum Gdańska i innych dzielnic.
Dlaczego warto?
Lokalizacja w bezpośrednim sąsiedztwie lasu i potoku
Atrakcyjna przestrzeń wspólna zaprojektowana z myślą o integracji i relaksie
Przemyślane układy mieszkań z balkonami i ogródkami
Wysoki standard wykonania i nowoczesna architektura
Bliskość komunikacji miejskiej oraz pełna infrastruktura handlowo-usługowa
Zainteresowała Cię inwestycja? Skontaktuj się, aby poznać szczegóły i dostępność mieszkań. Chętnie przedstawię ofertę dopasowaną do Twoich potrzeb.
Powyższa oferta ma charakter informacyjny i nie stanowi oferty handlowej w rozumieniu art. 66 §1 Kodeksu Cywilnego
______________________________________________________________________________________________
Ekspress Nieruchomości - biuro nieruchomości w Trójmieście
- Sprzedaż i kupno
- Wynajem i zarządzanie najmem
- Obsługa inwestycji deweloperskich
tel: +48 573-414-253
www.ekspressnieruchomosci.pl
637 000,00 PLN (10 093,49 PLN)
Wyjątkowe mieszkania gotowe do odbioru!
Mieszkanie na sprzedaż,
Gdańsk, Władysława Czermińskiego
Dane szczegółowe
- Typ transakcji: sprzedaż
- Typ nieruchomości: Mieszkanie
- Lokalizacja: Gdańsk Jasień, Władysława Czermińskiego
- Powierzchnia:63,11 m2
- Liczba pokoi: 3
- Rok budowy: 2024
- Piętro: 2 z 4
- Numer oferty: 667928
- Cena: 637 000,00 PLN
- Cena za m2: 10 093,49 PLN
Kontakt z agentem: Ekspress Nieruchomości
Jakub Sałata
Opis nieruchomości
Mapa
Kontakt z agentem
Ekspress Nieruchomości